作为三一C10系列全新微型旋挖,
SR65趁势而来,
剑指乡镇市场,
包括低层建筑,厂房场馆,
电力施工等场景。
然而,SR65的首战却是
拉森钢板桩引孔施工,
这其中究竟有着怎样的故事?
拉森钢板桩作为一种常见的临时基坑支护结构,在面对较硬的强~中风化岩层时,会出现钢板桩变形较大且无法插入的情况。而使用旋挖钻机引孔再回填土,可有效解决在较硬地层情况下的钢板桩施工难题。


拉森钢板桩
SR65产品特点
机器虽小,然而SR65却拥有多项新功能及杀手锏:整机带杆运输、行走高低速、动力头高转速(最快40rpm,配备一键甩土、一键抖土功能)、低净空模式、大排量电控主泵及大通径主阀。
全新C11驾驶室:安全(双重全防护车顶)、智能(全新触控屏)、科技(一键启动、 手机互联)、舒适(空间大、空调强劲、空气悬浮座椅)、驾乘体验更好。

带杆运输

全新C11驾驶室
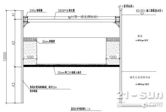
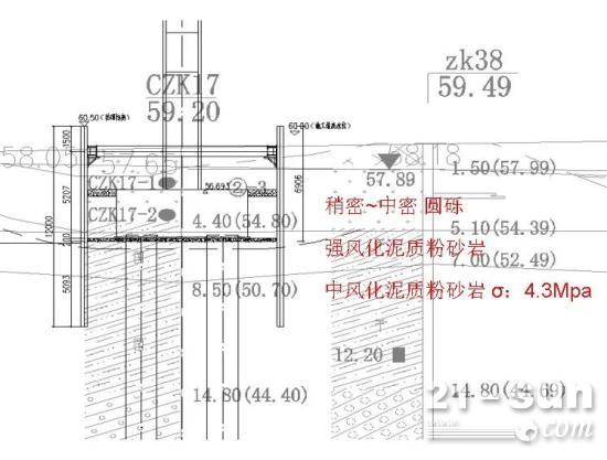
工程地质概况
信阳市浉河三期水环境综合治理工程PPP项目,其路桥承台修建在河道筑岛内,采用拉森钢板桩围堰进行支护,形成干作业环境。拉森钢板桩桩长12m,插打进入地下深度11.5m。中风化的泥质粉砂岩单轴抗压强度4.3MPa。单个围堰尺寸8.8m*14.6m,需要Φ800引孔数量58个。

围堰参数

地层分布
施工难点
① 地质复杂,岩层较硬。前期使用长螺旋引孔,引孔搭接过程中偏钻严重,且下部地层坚硬,难以打入设计标高。后使用高压水刀引孔拉森钢板桩,由于地层坚硬,仍无法插打钢板桩至设计标高。
② 工期紧,任务重。总包单位要求1个月完成4个承台围堰施工,另一相邻标段采用粉喷桩进行引孔,单个围堰施工耗时18天,不满足工期要求!

长螺旋引孔施工

粉喷桩引孔施工
施工表现
为应对该特殊地层,三一工法凭借十余年的经验积累,在施工前、施工中为客户提供以下解决方案:
① 采用φ800直径护筒护壁,φ600直径钻头,φ800@800引孔形式,不采取搭接,防止因钻孔相互咬合造成钻进过程中的偏孔。
② 并排同时下6个护筒,一方面护筒穿越易塌孔的上部砂层,既能稳住孔壁,又能防止相邻钻孔钻进过程中朝另一边偏斜;另一方面,提供旋挖作业面,避免因反复下护筒影响旋挖作业效率。
③ 使用三一定制体开斗Pro,有效预防泥质粉砂岩地层钻进过程中糊钻问题,甩土效率高,钻进速率快。
④ 向相邻钻孔卸渣,减少了钻孔二次回填时间,一举两得。
通过以上措施,SR65单桩成孔时间仅1h,每引一个孔可下2根拉森钢板桩,单个围堰成桩时间6~8d。工作油耗仅7.5L/h。单日施工产值达2万元。

SR65引孔施工

体开斗Pro甩土效果
总结
作为三一新推出最小系列微型旋挖,SR65首战告捷,不仅完成了长螺旋,水刀、旋喷桩无法啃下的施工难题,更以其灵活高效、施工成本低的特点给客户创造了更大的价值,也为拉森钢桩引孔施工,提供了新的思路!

